Architekten-Plan

Veröffentlicht am 19. November 2023 um 16:15

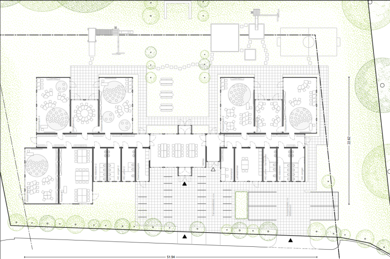
Schritt für Schritt geht es weiter. Die grundsätzliche Raumplanung ist nun abgeschlossen und wird in den nächsten Wochen noch weiter verfeinert. Das Besondere ist, dass wir langsam wachsen werden. In Jahr 1 bauen wir also nur die Räume, die benötigt werden wie Klassenzimmer mit angeschlossenem doppelten Gruppenraum und natürlich die Sanitäranlagen, die Küche, das Sekretariat und Teamzimmer (im Bild der rechte Teil). Die restlichen Module werden dann mit den jeweiligen Jahrgängen erweitert. Das ist sowohl ökologisch als auch ökonomisch sinnvoll. Das Außengelände steht gleich von Beginn an schon zur Verfügung mit viel Platz zum Spielen, Gärtnern, Werkeln und die Draussenschule.